Türkiye’nin cumhuriyet ilan edilmesinin ardından 1925 yılında resmen il olan Eskişehir.
MÖ 3000’den beri yerleşim yeridir Eski kelimesi Türkçe’de “ eski ” anlamına gelir

Hititler, Frigler, Lidyalılar, Persler, Romalılar ve Bizanslılar tarafından yönetilen, en sonunda Selçuklu İmparatorluğu’nun ve en son Osmanlıların eline geçmiştir.

OMM – Odunpazarı Modern Müze, Türkiye’den ve dünyadan modern ve çağdaş sanat eserlerinin sergilendiği bir buluşma noktası.
Eskişehir’in tarihi Odunpazarı evlerinin arasında yer alan OMM binası, dünyaca ünlü mimarlık ofisi Kengo Kuma and Associates (KKAA) tarafından tasarlandı; kendisi de Eskişehirli olan mimar ve koleksiyoner Erol Tabanca tarafından hayata geçirildi.



Tanabe Chikuunsai IV (1973 doğumlu) bir Japon bambu sanatçısıdır. Heykel çalışmaları ve işlevsel nesneleri kaplan bambudan (torachiku) elde yapılmıştır. Dördüncü nesil bir bambu ustasıdır. Aile adı Chikuunsai, “bambu bulutlarının efendisi” anlamına gelir

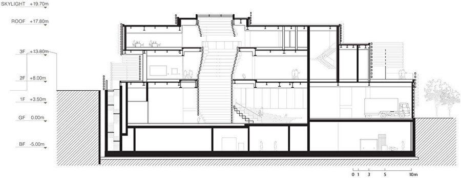
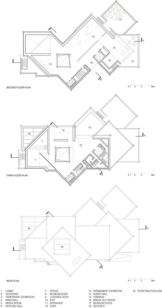
MİMARİ PROJE DETAYLARI..







Not: Yazıda kullanılan kaynaklara bağlantılar eklenmiştir.