Dünyanın en iyi dini yapısı ödülünü kazanan “Sancaklar Cami”
alışagelmiş camilerden farklı yapısıyla dikkat çekiyor.
Mimar Emre Arolat tarafından gerçekleştirilen.
Sancaklar Cami Büyükçekmece de yer almaktadır.


architecture by Emre Arolat Architects 2014


architecture by Emre Arolat Architects 2014

Emre Arolat Architects 2014

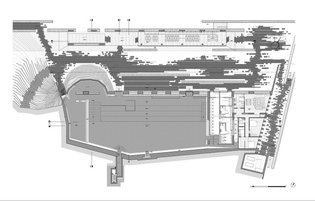
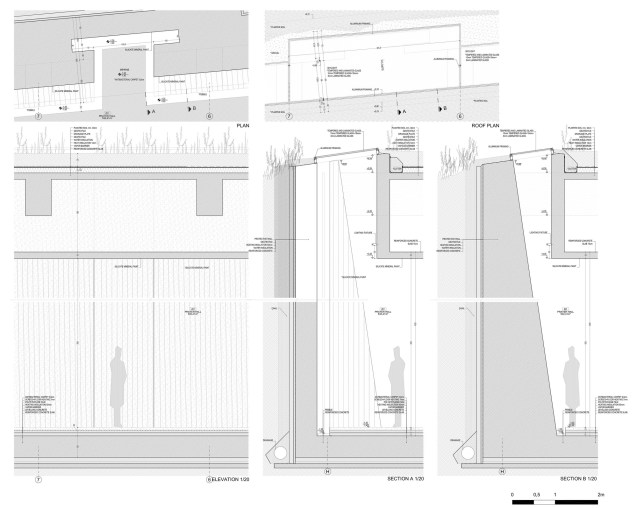
Sancaklar Cami Vaziyet Planı





