tea and coffee house by Kengo Kuma
Coeda House, Japonların “küçük dalların evi” diye çevirebiliriz
Pasifik Okyanusu’na bakan bir uçurumun üzerinde duran bu kafenin adıdır.
Zarif pavyon, Japon mimar Kengo Kuma tarafından tasarlandı.
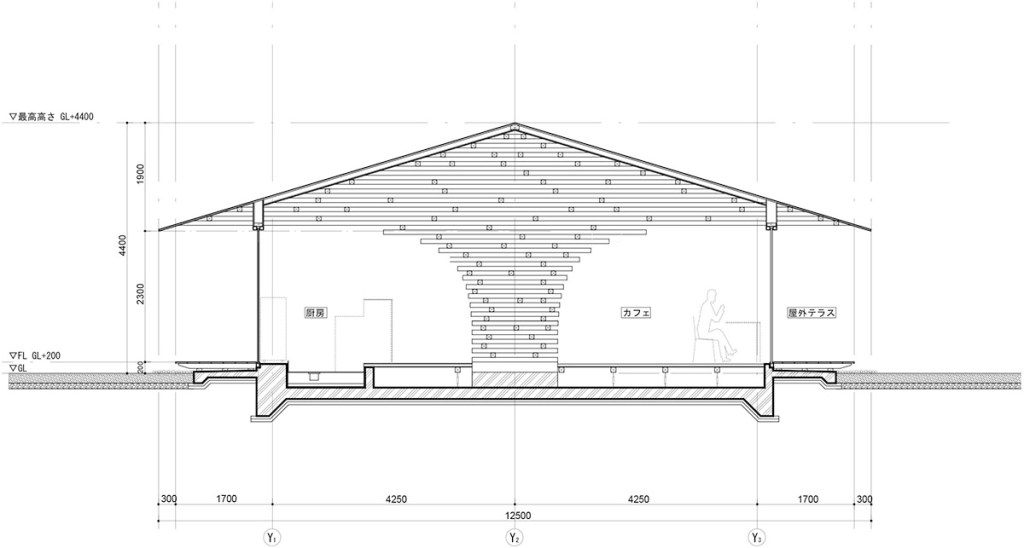
Kare sedir ağaçlar bir biri üstüne bindirilip,
şemsiye formunda ahşap yapı oluşturulmuştur.
peyzajın geniş görüşünü engelleyecek cephe taşıyıcıları yoktur.
Üst üste istiflenen sedir ağaçları, demir bağlantı çubukları ile
önemli ölçüde daha yüksek gerilme mukavemetine sahip karbon fiber kutuplarla güçlendirilmiştir.
Köşkün ortasındaki “gövde” çatıyı taşıyan konstrüksiyonu oluşturmaktadır
Kafe tasarımı ile çevredeki manzaraya, doğaya tamamen açık bir gözlem noktasıdır.









This work is licensed under a Creative Commons Attribution 4.0 International License.